当前位置: 首页 >> 安全文化

国家建筑标准设计图集18J811-1《<建筑设计防火规范>图示》更正说明

更改内容:

1、3-33页:修改平面图中尺寸标注线的位置。


2、3-35页:修改3.6.10图示的注释。


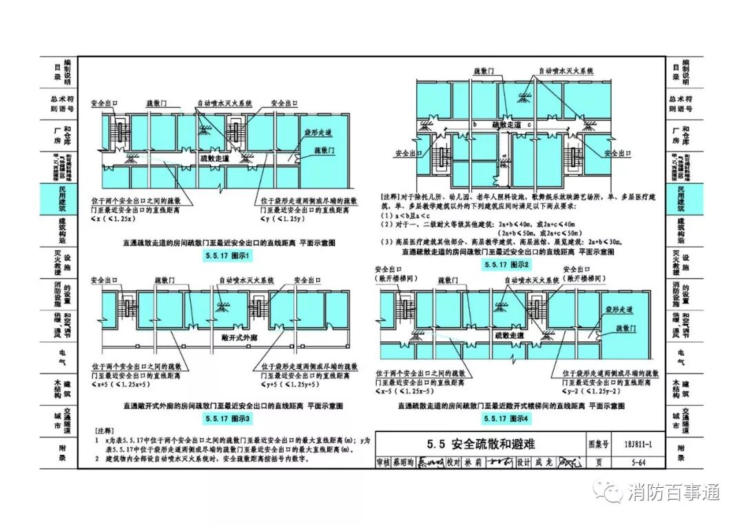
3、5-64页:修改5.5.17图示2中a的标注位置;增加注释(3)。


4、5-66页:增加注释4。


5、5-67页:修改5.5.17图示7续中室内任一点至最近疏散门或安全出口的直线距离的标注及该图示的注释。


6、5-78页:修改防烟楼梯灾避难层同层错位平面示意图的注释。


7、5-79页:修改5.5.24图示1中避难间的入口处应设置明显的指示标志索引线的位置。


8、5-88页:删除共用前室平面示意图中前室宽度的标注。

链接:消防百事通  https://mp.weixin.qq.com/s?__biz=MjM5NDQzNTk0Mw==&mid=2650289973&idx=1&sn=42aaf466c1eca60df504dee00a6b2e03&chksm=be8b513d89fcd82bb8bbf676b17ebd2af6fe0713c924d3ac291eb96759b4e399d1aab114595b&mpshare=1&scene=23&srcid=#rd

Copyright © 马鞍山市安全生产协会 All Rights Reserved. 皖ICP备0902788888号-1
最佳使用效果1024*768以上分辨率,建议使用微软公司IE6.0及以上  您是第 27005 位访客 今日访问量:71 当前在线人数:4